Biệt thự 2 tầng tân cổ điển kiểu Pháp đang trở thành xu hướng kiến trúc được nhiều gia đình Việt Nam lựa chọn trong năm 2026. Sự kết hợp hài hòa giữa vẻ đẹp cổ điển châu Âu và tiện nghi hiện đại tạo nên không gian sống đẳng cấp, sang trọng mà vẫn ấm cúng. Bài viết này sẽ giúp bạn khám phá toàn bộ về phong cách kiến trúc Pháp, từ đặc điểm nhận diện, bản vẽ thiết kế cho đến chi phí xây dựng cụ thể.
Biệt thự tân cổ điển kiểu Pháp là gì?
Biệt thự tân cổ điển kiểu Pháp là phong cách kiến trúc lấy cảm hứng từ những tòa lâu đài, dinh thự quý tộc Pháp thời kỳ thế kỷ 17-18, được cải tiến và ứng dụng phù hợp với đời sống hiện đại. Điểm đặc biệt của phong cách này nằm ở sự cân đối hoàn hảo trong từng đường nét, chi tiết trang trí tinh xảo nhưng không rườm rà.
Khác với kiến trúc cổ điển thuần túy, biệt thự tân cổ điển kiểu Pháp đã được đơn giản hóa những chi tiết phức tạp nhưng vẫn giữ được tinh thần và nét đẹp đặc trưng. Phong cách này phù hợp với khí hậu nhiệt đới Việt Nam, đồng thời tối ưu hóa công năng sử dụng cho cuộc sống đương đại.
Biệt thư 2 tầng kiểu Pháp thường có diện tích từ 200-500m², phù hợp với nhiều quy mô gia đình và ngân sách đầu tư khác n

hau. Đây là lựa chọn lý tưởng cho những ai yêu thích sự sang trọng, đẳng cấp nhưng vẫn muốn không gian sống gần gũi và thuận tiện.
Đặc điểm kiến trúc biệt thự 2 tầng kiểu Pháp
Mặt tiền và hình khối
Mặt tiền biệt thự 2 tầng tân cổ điển kiểu Pháp được thiết kế theo nguyên tắc đối xứng tuyệt đối, tạo cảm giác cân bằng và hài hòa. Trục chính thường là cổng vào hoặc lối ra vào chính, hai bên được bố trí đối xứng về cửa sổ, ban công và các chi tiết trang trí.
Hình khối của biệt thự mini kiểu pháp thường vuông vức, chắc chắn với các góc cạnh rõ ràng. Tầng 1 có chiều cao từ 4-4.5m, tầng 2 từ 3.5-4m, tạo tỷ lệ hài hòa và thoáng đãng. Phần mái thường chiếm khoảng 1/3 tổng chiều cao công trình, góp phần tạo nên dáng vẻ uy nghi đặc trưng.
Nhiều thiết kế biệt thự 2 tầng kiểu Pháp còn có phần gác mái được tận dụng làm không gian sinh hoạt, với các cửa sổ hình vòm hoặc chữ nhật nhô ra khỏi mái, vừa đẹp mắt vừa tăng diện tích sử dụng.
Xem thêm: Kiến trúc Đông Dương là gì? Đặc điểm phong cách kiến trúc Đông Dương
Mái Mansard đặc trưng
Mái Mansard là đặc điểm nhận diện quan trọng nhất của kiến trúc tân cổ điển Pháp. Đây là kiểu mái có hai độ dốc khác nhau, phần dưới dốc hơn (thường 70-80 độ), phần trên thoải hơn (khoảng 30-45 độ). Thiết kế này không chỉ mang tính thẩm mỹ cao mà còn tạo thêm không gian sử dụng ở tầng gác mái.
Mái thường được lợp bằng ngói Pháp màu đỏ nâu hoặc ngói phẳng màu xám đen, tạo điểm nhấn ấn tượng cho tổng thể công trình. Một số mẫu biệt thự 2 tầng kiểu Pháp hiện đại sử dụng ngói bitum hoặc tôn giả ngói để tiết kiệm chi phí nhưng vẫn đảm bảo tính thẩm mỹ.

Trên mái thường có các cửa sổ mái (dormer windows) với khung gỗ hoặc nhôm sơn tĩnh điện, giúp thông gió và chiếu sáng cho không gian tầng áp mái. Chi tiết này vừa mang tính năng sử dụng, vừa là điểm nhấn trang trí quan trọng.
Cột trụ, phào chỉ, hoa văn
Cột trụ là yếu tố không thể thiếu trong kiến trúc biệt thự kiểu Pháp 2 tầng. Các cột thường được thiết kế theo lối cổ điển với ba phần: chân cột, thân cột và đầu cột (capital). Chất liệu phổ biến là xi măng GRC, đá nhân tạo/nung kết hoặc bê tông đúc sẵn với hoa văn chạm khắc tinh xảo.
Phào chỉ là chi tiết trang trí chạy dọc theo các đường nét của công trình như viền mái, viền cửa sổ, viền tường. Những đường phào chỉ này thường có hoa văn cách điệu từ thiên nhiên như lá cây, hoa văn xoắn ốc, tạo nên vẻ đẹp tinh tế và sang trọng.
Hoa văn trang trí tập trung ở mặt tiền, đặc biệt là khu vực cổng vào, ban công và đầu hồi cầu thang. Các họa tiết thường gặp bao gồm hình hoa lá, dây leo, hình chữ C và S đan xen, được chạm khắc hoặc đúc khuôn sẵn trên vật liệu composite, GRC hay xi măng nghệ thuật.
Cửa sổ và ban công
Cửa sổ của nhà biệt thự 2 tầng kiểu Pháp thường có hình chữ nhật cao, một số thiết kế sử dụng cửa sổ hình vòm tròn (arched windows) mang đậm phong cách cổ điển. Khung cửa được làm bằng gỗ tự nhiên sơn màu trắng, kem hoặc nhôm kính sơn tĩnh điện giả gỗ.

Cửa sổ thường được chia thành nhiều ô nhỏ bằng song kẻ (muntins), tạo hình vuông hoặc chữ nhật đều đặn. Thiết kế này không chỉ mang tính thẩm mỹ cao mà còn giúp tăng cường độ bền cho cửa kính. Nhiều công trình sử dụng kính hộp cách nhiệt kết hợp rèm vải dày để chống nóng hiệu quả.
Ban công là điểm nhấn quan trọng của biệt thự mini 2 tầng kiểu Pháp, thường được đặt ở tầng 2 với lan can sắt uốn nghệ thuật hoặc đá cẩm thạch. Các họa tiết hoa văn trên lan can thường đối xứng, tinh xảo, tạo điểm nhấn thu hút ánh nhìn. Ban công kiểu Juliet (chỉ nhô ra một chút, không đủ để bước ra) cũng rất phổ biến trong thiết kế này.
Màu sắc và vật liệu
Bảng màu chủ đạo của biệt thự tân cổ điển 2 tầng kiểu Pháp thường là các tông màu trung tính, thanh lịch như trắng kem, vàng nhạt, be, xám nhạt. Những màu sắc này tạo cảm giác sang trọng, nhẹ nhàng và không bao giờ lỗi thời.
Điểm nhấn màu sắc thường nằm ở phần mái với ngói đỏ nâu hoặc xám đen, tạo sự tương phản hài hòa với tông màu nhạt của tường. Cửa sổ và cửa chính thường được sơn màu trắng hoặc màu gỗ tự nhiên, làm nổi bật lên trên nền tường.
Vật liệu xây dựng ưu tiên là đá tự nhiên, gạch ốp cao cấp, sơn ngoại thất chống thấm tốt. Các chi tiết trang trí sử dụng GRC (Glass Fiber Reinforced Concrete), xi măng nghệ thuật hoặc composite – những vật liệu bền đẹp, dễ thi công và bảo dưỡng. Sàn thường lát đá granite, đá marble hoặc gạch men cao cấp.
Cảm giác tổng thể
Tổng thể kiến trúc biệt thự 2 tầng kiểu Pháp đẹp mang lại cảm giác uy nghi, đẳng cấp nhưng vẫn ấm áp và gần gũi. Sự đối xứng hoàn hảo, tỷ lệ cân đối và chi tiết tinh xảo tạo nên một công trình kiến trúc hoàn chỉnh, hài hòa với môi trường xung quanh.
Không gian xung quanh biệt thự thường được bố trí sân vườn với thảm cỏ, hàng rào cây xanh và lối đi lát đá, tạo điểm nhấn cho tổng thể. Hệ thống chiếu sáng cảnh quan được thiết kế tỉ mỉ, làm nổi bật vẻ đẹp của công trình vào ban đêm.
Phong cách này phù hợp với những ai trân trọng giá trị truyền thống, yêu thích sự sang trọng nhưng không phô trương, mong muốn một không gian sống đẳng cấp và bền vững theo thời gian.
Top mẫu biệt thự 2 tầng tân cổ điển kiểu Pháp đẹp
Biệt thự 2 tầng tân cổ điển kiểu Pháp luôn là lựa chọn hàng đầu của những ai yêu thích sự sang trọng, đẳng cấp và mang đậm dấu ấn châu Âu. Dưới đây là những mẫu biệt thự 2 tầng kiểu Pháp đẹp nhất, được Sưa tuyển chọn từ các dự án thực tế và xu hướng thiết kế mới nhất.






Các mẫu biệt thự này thể hiện rõ nét tinh hoa của kiến trúc Pháp với mái mansard đặc trưng, cột trụ cổ điển, phào chỉ tinh xảo và hệ thống cửa sổ cân đối hoàn hảo. Diện tích đa dạng từ 150m2 đến 500m2, phù hợp với nhiều quy mô đất và nhu cầu gia đình. Mỗi mẫu đều được thiết kế tối ưu công năng, kết hợp hài hòa giữa vẻ đẹp cổ điển và tiện nghi hiện đại.
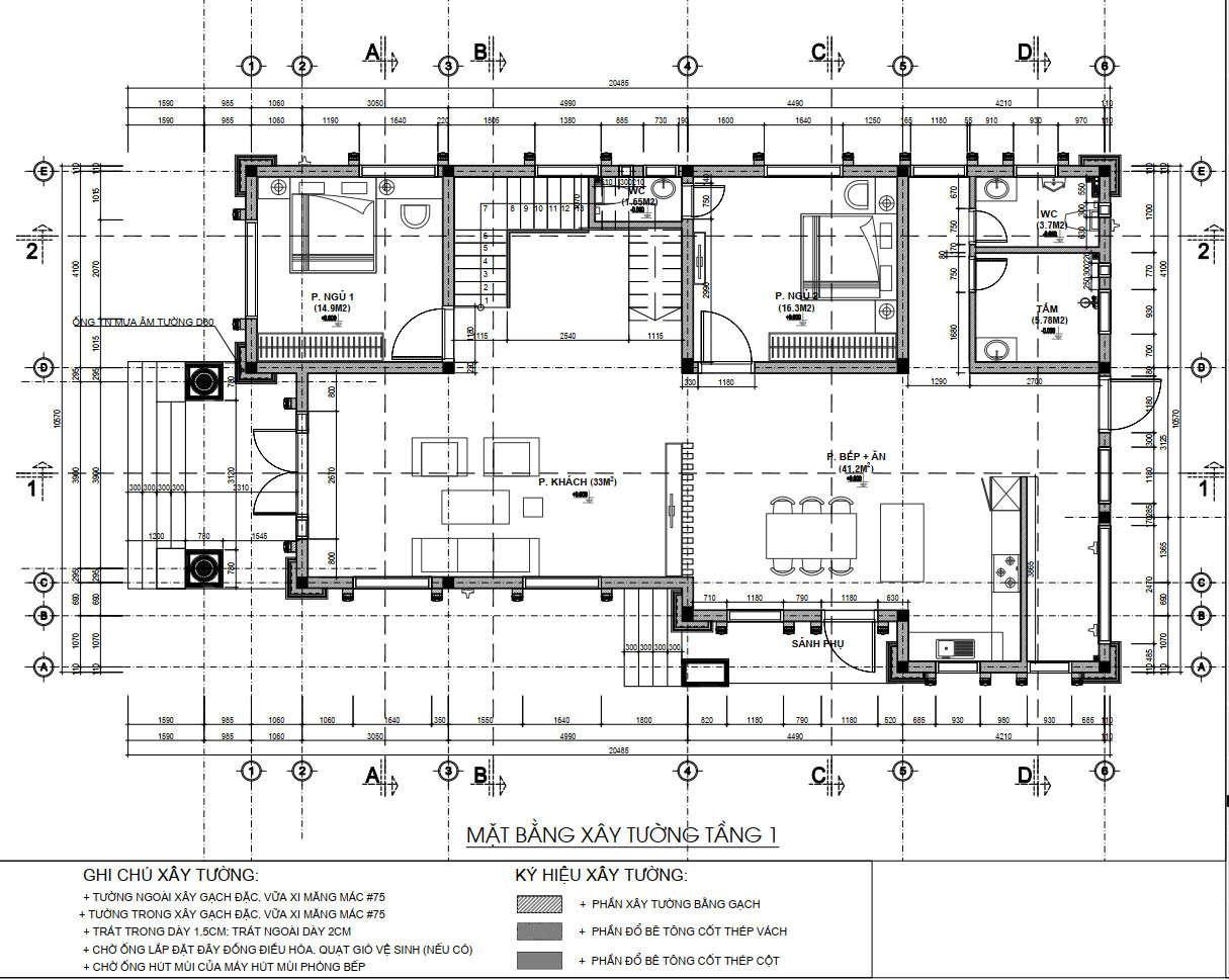
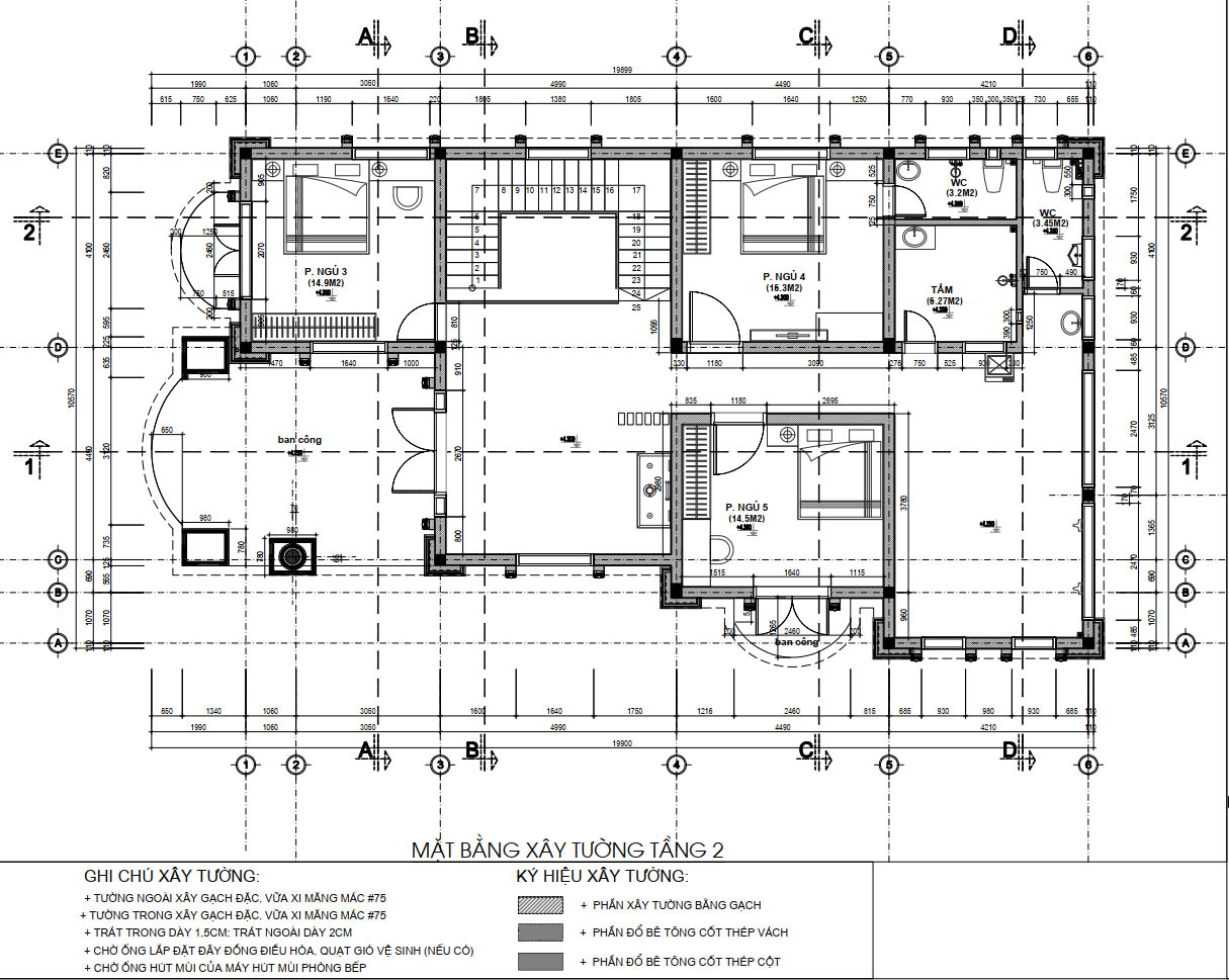
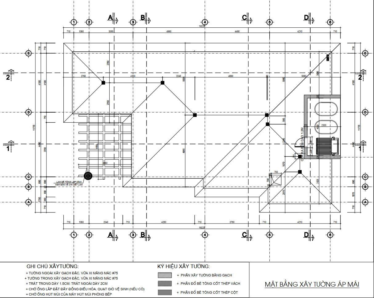
Bản vẽ biệt thự 2 tầng tân cổ điển kiểu Pháp
Bản vẽ thiết kế là yếu tố then chốt quyết định đến sự thành công của công trình biệt thự kiểu Pháp. Một bộ bản vẽ hoàn chỉnh bao gồm bản vẽ mặt bằng từng tầng, mặt đứng, mặt cắt và bản vẽ chi tiết các hạng mục như cột, phào chỉ, lan can, cửa sổ.
Bản vẽ mặt bằng tầng 1 thường bố trí phòng khách, phòng ăn, bếp và một phòng ngủ hoặc phòng làm việc. Tầng 2 dành cho các phòng ngủ, phòng thay đồ và khu vực sinh hoạt riêng tư. Đặc biệt, bản vẽ biệt thự kiểu Pháp cần thể hiện rõ hệ thống mái mansard với gác mái có thể sử dụng, tạo thêm không gian sinh hoạt cho gia đình. Sưa khuyên bạn nên chọn đơn vị thiết kế có kinh nghiệm về kiến trúc cổ điển để đảm bảo tỷ lệ hài hòa và chi tiết chính xác.



Nội thất biệt thự 2 tầng kiểu Pháp
Nội thất biệt thự kiểu Pháp mang phong cách tân cổ điển với sự kết hợp hài hòa giữa vẻ đẹp cổ điển châu Âu và tiện nghi hiện đại. Gam màu chủ đạo là be, kem, trắng ngà, vàng gold kết hợp với nâu gỗ tự nhiên tạo cảm giác ấm cúng và sang trọng.


Phòng khách thường sử dụng sofa cổ điển bọc vải nhung hoặc da cao cấp, bàn trà mặt đá marble, đèn chùm pha lê và thảm trải sàn dệt thủ công. Phòng ngủ master thiết kế giường tân cổ điển với đầu giường bọc vải, tủ quần áo gỗ tự nhiên chạm khắc tinh xảo. Phòng bếp kết hợp bếp hiện đại với tủ bếp gỗ phong cách cổ điển, mặt bếp đá tự nhiên và đảo bếp trung tâm. Hệ thống ánh sáng được thiết kế đa tầng với đèn chùm chính, đèn tường phụ và đèn trang trí tạo điểm nhấn cho từng không gian.
So sánh biệt thự kiểu Pháp với các phong cách khác
Biệt thự kiểu Pháp thường được so sánh với các phong cách kiến trúc cao cấp khác để gia chủ có cái nhìn rõ ràng hơn khi lựa chọn. Mỗi phong cách đều có những nét đặc trưng riêng về mặt thẩm mỹ, công năng và chi phí đầu tư.

Biệt thự kiểu Pháp vs Biệt thự tân cổ điển
Biệt thự tân cổ điển là thuật ngữ chung cho các phong cách lấy cảm hứng từ kiến trúc cổ điển châu Âu, trong khi biệt thự kiểu Pháp là một nhánh cụ thể của phong cách này. Kiểu Pháp có đặc điểm nhận diện rõ ràng hơn như mái Mansard, cột trụ kiểu Corinthian hoặc Ionic, và hoa văn đặc trưng.

Tân cổ điển nói chung có thể linh hoạt hơn về thiết kế, không bị ràng buộc quá nhiều vào một trường phái cụ thể. Trong khi đó, kiểu Pháp cần tuân thủ các nguyên tắc đối xứng và tỷ lệ chặt chẽ hơn để đảm bảo tính xác thực của phong cách.
Về chi phí, cả hai phong cách đều thuộc phân khúc cao cấp, nhưng biệt thự kiểu Pháp có xu hướng tốn kém hơn do yêu cầu cao về chi tiết trang trí và vật liệu chất lượng cao.
Biệt thự kiểu Pháp vs Biệt thự hiện đại
Biệt thự hiện đại (contemporary) ưu tiên sự tối giản, đường nét sắc cạnh, và vật liệu công nghiệp như kính, thép, bê tông. Ngược lại, biệt thự kiểu Pháp tôn vinh sự phức tạp trong chi tiết, đường cong mềm mại, và vật liệu truyền thống như gỗ, đá tự nhiên.
Về công năng, biệt thự hiện đại thường có không gian mở, tối đa hóa ánh sáng tự nhiên và tầm nhìn ra ngoài. Biệt thự kiểu Pháp có phân chia không gian rõ ràng hơn, mỗi phòng có chức năng riêng biệt, tạo sự riêng tư cao hơn.

Chi phí bảo dưỡng của biệt thự hiện đại thường thấp hơn do ít chi tiết trang trí, vật liệu bền và dễ vệ sinh. Tuy nhiên, biệt thự kiểu Pháp có giá trị thẩm mỹ và bền vững về mặt phong cách theo thời gian, không bị lỗi mốt.
Biệt thự kiểu Pháp vs Biệt thự Địa Trung Hải
Cả hai phong cách đều có nguồn gốc châu Âu nhưng mang đậm dấu ấn vùng miền khác nhau. Biệt thự Địa Trung Hải sử dụng mái ngói đỏ, tường sơn màu ấm như vàng, cam, đất nung, vòm tròn và hiên rộng phù hợp với khí hậu nắng nóng, gần biển. Không gian mở, thoáng đãng và thường có sân vườn Địa Trung Hải với cây ô liu, cây xương rồng.

Biệt thự kiểu Pháp trang trọng, đối xứng hơn với mái Mansard đặc trưng và tông màu nhạt, thanh lịch như trắng, be, xám. Phong cách Địa Trung Hải thoải mái, gần gũi với thiên nhiên còn phong cách Pháp sang trọng, quý phái và chú trọng chi tiết trang trí cầu kỳ. Về chi phí, biệt thự kiểu Pháp thường cao hơn 20% đến 30% do yêu cầu nhiều chi tiết phào chỉ, hoa văn và vật liệu cao cấp hơn.
Biệt thự kiểu Pháp vs Biệt thự kiểu Anh
Cả hai đều là biệt thự tân cổ điển châu Âu nhưng có sự khác biệt rõ rệt. Biệt thự kiểu Anh thường sử dụng gạch đỏ hoặc đá tự nhiên, mái dốc cao với ống khói nổi bật, cửa sổ nhiều ô nhỏ kiểu cổ điển Anh. Phong cách này mang hơi hướng đồng quê, ấm cúng hơn.

Biệt thự kiểu Pháp trang trọng, quý phái hơn với tường sơn màu nhạt, mái mansard đặc trưng và cửa sổ lớn có hoa văn sắt rèn. Về nội thất, kiểu Anh thường sử dụng gỗ sồi sẫm màu, vải họa tiết hoa nhỏ còn kiểu Pháp dùng gỗ sáng màu, vải nhung hoặc lụa cao cấp. Chi phí hai phong cách tương đương nhau, tùy vào độ cầu kỳ của chi tiết.
Chi phí xây biệt thự 2 tầng tân cổ điển kiểu Pháp
Chi phí xây dựng biệt thự 2 tầng tân cổ điển kiểu Pháp dao động lớn tùy vào quy mô, vật liệu và độ cầu kỳ của chi tiết. Từ kinh nghiệm thực tế triển khai nhiều dự án, Sưa chia sẻ chi tiết chi phí theo từng hạng mục để bạn dễ dàng ước tính và chuẩn bị ngân sách hợp lý.
Chi phí xây thô
Chi phí xây thô bao gồm móng, cột, dầm, sàn, tường, mái và hệ thống kỹ thuật cơ bản. Đối với biệt thự kiểu Pháp, chi phí xây thô thường cao hơn 15% đến 20% so với biệt thự thông thường do cần xây mái mansard phức tạp và kết cấu chịu tải cho các chi tiết trang trí sau này.
- Móng và kết cấu: 3 triệu đến 4.5 triệu đồng mỗi m2, tùy loại đất và chiều sâu móng
- Tường xây: 800 nghìn đến 1.2 triệu đồng mỗi m2, sử dụng gạch block hoặc gạch đỏ
- Mái mansard: 2.5 triệu đến 4 triệu đồng mỗi m2 do kết cấu phức tạp, cần thợ có kinh nghiệm
- Hệ thống điện nước thô: 500 nghìn đến 800 nghìn đồng mỗi m2
Tổng chi phí xây thô trung bình từ 6 triệu đến 9 triệu đồng mỗi m2 sàn xây dựng. Với biệt thự 200m2 sàn, chi phí xây thô khoảng 1.2 tỷ đến 1.8 tỷ đồng.
Chi phí hoàn thiện
Chi phí hoàn thiện bao gồm trát tường, sơn, ốp lát, cửa, cửa sổ, lan can và đặc biệt là các chi tiết trang trí như phào chỉ, cột, hoa văn đặc trưng của phong cách Pháp. Đây là phần tốn kém nhất, chiếm 40% đến 50% tổng chi phí.
- Trát tường và sơn ngoại thất: 300 nghìn đến 500 nghìn đồng mỗi m2, sử dụng sơn hiệu ứng cao cấp
- Phào chỉ, cột, hoa văn: 800 nghìn đến 1.5 triệu đồng mỗi m2, tùy độ cầu kỳ
- Cửa sổ kiểu Pháp: 3 triệu đến 6 triệu đồng mỗi bộ, có hoa văn sắt rèn
- Cửa chính gỗ tự nhiên: 15 triệu đến 30 triệu đồng
- Ốp lát sàn, tường: 500 nghìn đến 1.2 triệu đồng mỗi m2
- Trần thạch cao, đèn trang trí: 400 nghìn đến 800 nghìn đồng mỗi m2
Tổng chi phí hoàn thiện trung bình từ 7 triệu đến 12 triệu đồng mỗi m2. Với biệt thự 200m2 sàn, chi phí hoàn thiện khoảng 1.4 tỷ đến 2.4 tỷ đồng.
Chi phí nội thất
Nội thất biệt thự tân cổ điển kiểu Pháp đòi hỏi đầu tư lớn để đảm bảo hài hòa với tổng thể kiến trúc. Nội thất bao gồm đồ gỗ, đèn trang trí, rèm cửa, thảm và các phụ kiện trang trí.
Nội thất cơ bản (5 triệu đến 8 triệu đồng mỗi m2):
- Sofa vải cao cấp, bàn trà gỗ công nghiệp veneer
- Giường ngủ, tủ quần áo gỗ công nghiệp
- Bếp hiện đại kết hợp tủ bếp phong cách cổ điển
- Đèn chùm cơ bản, rèm vải thường
Nội thất cao cấp (10 triệu đến 15 triệu đồng mỗi m2):
- Sofa da Ý hoặc vải nhung nhập khẩu
- Giường ngủ, tủ quần áo gỗ tự nhiên
- Bếp cao cấp, mặt bếp đá tự nhiên
- Đèn chùm pha lê, rèm vải cao cấp
Nội thất siêu cao cấp (20 triệu đến 30 triệu đồng mỗi m2):
- Nội thất nhập khẩu từ thương hiệu nổi tiếng
- Gỗ tự nhiên nguyên khối cao cấp
- Đèn chùm pha lê Swarovski
- Thảm dệt thủ công, tranh nghệ thuật
Với biệt thự 200m2, chi phí nội thất từ 1 tỷ đến 6 tỷ đồng tùy mức độ đầu tư.
Tổng vốn đầu tư
Tổng chi phí xây dựng hoàn thiện một biệt thự 2 tầng tân cổ điển kiểu Pháp diện tích 200m2:
- Mức cơ bản: 3.6 tỷ đến 5.2 tỷ đồng (18 triệu đến 26 triệu đồng mỗi m2)
- Mức trung cấp: 5.2 tỷ đến 7.2 tỷ đồng (26 triệu đến 36 triệu đồng mỗi m2)
- Mức cao cấp: 7.2 tỷ đến 12 tỷ đồng (36 triệu đến 60 triệu đồng mỗi m2)
Chi phí trên chưa bao gồm tiền đất, chi phí thiết kế, giám sát và các khoản phí phát sinh. Sưa khuyên bạn nên dự phòng thêm 15% đến 20% tổng dự toán cho các chi phí phát sinh trong quá trình thi công. Nếu đang chuẩn bị xây nhà, hãy tham khảo thêm checklist đầy đủ để tránh bỏ sót các hạng mục quan trọng.
Phong thủy biệt thự 2 tầng kiểu Pháp
Phong thủy là yếu tố quan trọng mà nhiều gia chủ Việt Nam quan tâm khi xây dựng biệt thự. Mặc dù kiến trúc Pháp có nguồn gốc từ châu Âu, vẫn có thể áp dụng nguyên tắc phong thủy Á Đông để mang lại may mắn và thịnh vượng cho gia đình.
Hướng nhà và cửa chính
Hướng nhà nên chọn theo mệnh gia chủ để hợp phong thủy. Cửa chính là điểm đón khí vào nhà, nên đặt ở vị trí thoáng đãng, không bị che khuất bởi cây lớn, cột điện hay góc nhà hàng xóm. Biệt thự kiểu Pháp thường có cửa chính lớn, trang trọng, rất phù hợp với nguyên tắc phong thủy về việc đón khí tốt vào nhà.
Cửa chính không nên đối diện trực tiếp với cầu thang hoặc cửa sau để tránh khí thoát thẳng ra ngoài. Nếu bắt buộc phải bố trí như vậy, có thể đặt vách ngăn hoặc tiểu cảnh để làm chậm luồng khí.
Bố cục các phòng
Phòng khách nên đặt ở vị trí trung tâm, rộng rãi và thoáng đãng để đón khí tốt. Phòng bếp không nên đối diện hoặc kề sát cửa chính, cũng không nên đặt dưới gầm cầu thang. Hướng bếp nên chọn theo mệnh vợ vì người nấu ăn thường là phụ nữ, tuy nhiên cũng cần cân nhắc hướng bếp theo tuổi vợ hay chồng để hợp cả hai.
Phòng ngủ master nên đặt ở vị trí yên tĩnh nhất, tránh tiếng ồn từ đường phố. Giường ngủ không nên đặt dưới dầm, không nên để cửa phòng ngủ đối diện cửa sổ hoặc cửa nhà vệ sinh. Kích thước cửa phòng ngủ cũng cần tuân thủ theo thước lỗ ban để hợp phong thủy.
Màu sắc và vật liệu
Biệt thự kiểu Pháp thường sử dụng màu be, kem, trắng ngà, vàng nhạt rất hợp với mệnh Kim và Thổ. Nếu gia chủ thuộc mệnh Mộc hoặc Thủy, có thể điểm thêm màu xanh lá, xanh dương ở nội thất để cân bằng. Tránh sử dụng quá nhiều màu đỏ, cam rực rỡ trong biệt thự phong cách cổ điển vì không hài hòa về mặt thẩm mỹ.
Vật liệu gỗ tự nhiên, đá tự nhiên rất tốt cho phong thủy, mang lại năng lượng ổn định cho ngôi nhà. Tuy nhiên cần chú ý chọn gỗ có nguồn gốc rõ ràng, tránh dùng gỗ từ những cây lâu năm bị chặt vì có thể mang năng lượng không tốt.
Sân vườn và không gian ngoại thất
Biệt thự kiểu Pháp thường có sân vườn phía trước rộng rãi, rất tốt cho phong thủy. Nên trồng cây xanh, cây có hoa đẹp như hồng, cẩm chướng, hoa lan. Tránh trồng cây có gai như xương rồng, tránh trồng cây to quá gần nhà che khuất ánh sáng.

Có thể bố trí tiểu cảnh với nước chảy hoặc đài phun nước phía trước nhà để thu hút tài lộc. Tuy nhiên không nên để nước chảy thẳng ra cửa chính vì tượng trưng cho tiền bạc chảy ra ngoài.

Lưu ý quan trọng khi thiết kế biệt thự kiểu Pháp
Thiết kế biệt thự tân cổ điển kiểu Pháp đòi hỏi sự am hiểu sâu về kiến trúc cổ điển và kinh nghiệm thực tế. Dưới đây là những lưu ý quan trọng từ kinh nghiệm của Sưa sau nhiều năm triển khai các dự án biệt thự cao cấp.
Chọn đơn vị thiết kế có kinh nghiệm
Không phải kiến trúc sư nào cũng thiết kế tốt phong cách cổ điển. Nên chọn đơn vị có portfolio về biệt thự tân cổ điển, hiểu rõ tỷ lệ vàng, cách bố trí cột trụ, phào chỉ hài hòa. Tham khảo thêm kinh nghiệm thuê thiết kế nhà hoặc nên thuê kiến trúc sư hay công ty thiết kế để đưa ra quyết định phù hợp.
Yêu cầu xem bản vẽ chi tiết trước khi thi công, đặc biệt là bản vẽ mái mansard, chi tiết phào chỉ, cột trụ. Bản vẽ phải thể hiện rõ kích thước, vật liệu và cách thi công từng hạng mục.
Cân nhắc khí hậu Việt Nam
Kiến trúc Pháp phát triển ở vùng ôn đới, trong khi Việt Nam có khí hậu nhiệt đới nóng ẩm. Do đó cần điều chỉnh một số chi tiết cho phù hợp như mở rộng hiên, tăng diện tích cửa sổ để thông gió, sử dụng vật liệu chống nóng cho mái và tường.
Hệ thống điều hòa không khí cần được tính toán kỹ lưỡng. Biệt thự 2 tầng diện tích 200m2 nên sử dụng hệ thống multi hoặc VRV để đảm bảo làm mát đồng đều và tiết kiệm điện.
Không nên cắt giảm chi tiết trang trí
Nhiều gia chủ vì muốn tiết kiệm chi phí nên cắt giảm phào chỉ, hoa văn, cột trụ. Điều này làm mất đi tinh thần của kiến trúc Pháp, biến biệt thự thành một ngôi nhà thông thường sơn màu nhạt. Nếu ngân sách hạn chế, nên giảm diện tích hoặc chọn phong cách đơn giản hơn thay vì xây biệt thự Pháp nhưng thiếu hồn.
Các chi tiết như đèn trang trí, lan can, cửa sổ cũng cần đầu tư đúng mức. Đừng dùng sản phẩm nhựa giả để thay thế chi tiết gỗ hoặc sắt rèn vì sẽ rất rõ và làm giảm giá trị thẩm mỹ.
Chú ý đến nội thất
Nội thất phải hài hòa với kiến trúc. Nếu xây biệt thự kiểu Pháp nhưng trang trí nội thất hiện đại sẽ rất lạc lõng. Nên chọn phong cách nội thất tân cổ điển, có thể pha chút hiện đại ở các thiết bị điện tử, bếp, thiết bị vệ sinh nhưng vẫn giữ được tổng thể hài hòa.
Tuân thủ quy định xây dựng
Trước khi thiết kế, cần tìm hiểu kỹ về khoảng lùi xây dựng, chỉ giới đường đỏ, cốt nền và các quy định về chiều cao công trình tại địa phương. Biệt thự kiểu Pháp thường có chiều cao lớn do mái mansard, cần đảm bảo không vượt quá quy định cho phép.
Nếu đang có kế hoạch sửa nhà hoặc cải tạo thành biệt thự kiểu Pháp, cần xin giấy phép xây dựng đúng quy định, tránh vi phạm dẫn đến bị xử phạt hoặc buộc tháo dỡ.
Lời kết
Biệt thự 2 tầng tân cổ điển kiểu Pháp là lựa chọn hoàn hảo cho những ai yêu thích vẻ đẹp sang trọng, quý phái và mang đậm dấu ấn châu Âu. Từ đặc điểm kiến trúc với mái mansard đặc trưng, hệ thống cột trụ, phào chỉ tinh xảo đến nội thất tân cổ điển cao cấp, mọi chi tiết đều thể hiện đẳng cấp và gu thẩm mỹ tinh tế của gia chủ.
Tuy nhiên, để có được một ngôi biệt thự kiểu Pháp đẹp và bền vững, bạn cần hiểu rõ về đặc điểm kiến trúc, lựa chọn đơn vị thiết kế có kinh nghiệm, chuẩn bị ngân sách đầu tư hợp lý và tuân thủ các nguyên tắc phong thủy cũng như quy định xây dựng.
Sưa hy vọng bài viết đã cung cấp đầy đủ thông tin về biệt thự 2 tầng tân cổ điển kiểu Pháp, từ đặc điểm kiến trúc, mẫu thiết kế đẹp, bản vẽ chi tiết đến chi phí xây dựng và những lưu ý quan trọng. Nếu bạn đang có kế hoạch xây dựng hoặc thiết kế biệt thự kiểu Pháp, đừng ngần ngại liên hệ với Sưa Interior để được tư vấn chi tiết và báo giá cụ thể. Đội ngũ kiến trúc sư của Sưa có nhiều năm kinh nghiệm thiết kế biệt thự tân cổ điển, cam kết mang đến công trình đẹp, chất lượng và đúng tiến độ.

